- Главная
- Септики Топас
- Септик Топас 8 Пр
Септик Топас 8 Пр
- Для 8-и человек
- Объем переработки: 1.5 м3/сут.
- Залповый сброс: 440 л.
- Вес: 360 кг.
- Длина: 1.6 м
- Ширина: 1.2 м
- Высота: 2.6 м
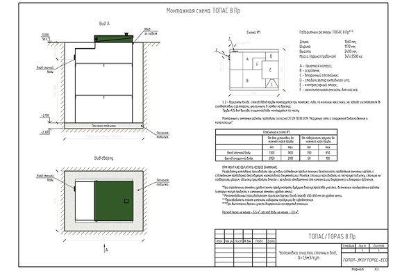
- Глубина залегания: 90 см
- Потреблeние энергии: 1.6 кВт/сут
Доставка и оплата
- Срок доставки по Москве – от 1 дня
- Доставка до 30 км от МКАД – бесплатно
- Доставка свыше 30 км от МКАД – 50 руб/км
- Оплата – наличный или безналичный расчет
Цена на Топас 8 Пр
Скидка -10%
|
Топас-С 8 Пр в наличии (1 компрессор) |
179 730 руб. |
|---|---|
| Цена по акции (доставка + монтаж) | 189 730 руб. |
|
Топас 8 Пр в наличии (2 компрессора) |
196 110 руб. |
| Цена по акции (доставка + монтаж) | 206 110 руб. |
Информация по монтажу
Описание
Отличительной особенностью септика Топас 8 Пр является то, что он оснащен насосом, который обеспечивает принудительный отвод чистой воды в точку сброса. Этот процесс является полностью автоматическим, отвод воды осуществляется в канаву или дренажный колодец. Применение данной модели рекомендуется в регионах с уровнем грунтовых вод выше нормы и при условии, что глубина врезки канализационной трубы менее 80 см.
Автономная канализация Топас 8 Пр обладает объемом залпового сброса 440 л. и производительностью 1.5 м3/сутки, что делает его подходящим для домов, в которых число жильцов не превышает 8 чел. Для нормального функционирования системы, в ней должно быть не более одной душевой, одного унитаза и двух раковин.
Принцип работы
Станция очистки сточных вод Топас 8 Пр разработана на основе опыта больших станций очистки сточных вод с мелкопузырчатой аэрацией. Она выполняет очистку, а не аккумуляцию (накопление) хозяйственно-бытовых стоков. Механизм ее работы основан на сочетании биологической очистки с процессом мелкопузырчатой аэрации (искусственная подача воздуха) для окисления органической составляющей сточных вод. Процесс биологической очистки заключается в биохимическом разрушении микроорганизмами органических веществ. В результате вода из септика Топас 8 Пр выводится очищенной до 98%.
Канализация дополнительно комплектуется дренажным насосом, который, при поднятии воды до определенного уровня, принудительно выбрасывает ее из станции. Выходная труба в этом случае устанавливается так, чтобы остатки воды после сброса стекали обратно в резервуар. Очищенные стоки можно сбрасывать в канаву (дренажную, ливневую, придорожную), приемный колодец или в овраг.
Модель Топас 8 Пр с принудительным насосом рекомендуется устанавливать на участках с глиняной почвой (или если у почвы низкий уровень проходимости воды), при высоком уровне грунтовых вод, когда отвод необходим на небольшую возвышенность или на большое расстояние от септика (более 4 метров), если очищенные стоки необходимо отвести на поверхность, например в ливневую канаву.
Допустимое количество сантехники
Человек x8
Раковины x3
Души/ванны x1
Туалеты x2
Стиральные машины x1
Посудомоечные машины x1
Комплектация
Топас 8 Пр представляет собой полностью укомплектованную автономную канализацию, готовую к установке и дальнейшей эксплуатации.
Стандартная комплектация септика состоит из таких элементов как:
Септик Топас 8 Пр может дополнительно комплектоваться световой аварийной сигнализацией производства компании ТОПОЛ-ЭКО. При этом в наборе с сигнализацией идут:
Основные преимущества
- несложный монтаж, отсутствует необходимость бетонирования зоны вокруг септика;
- высокая степень очистки - до 98%;
- отсутствие неприятных запахов;
- компактность, станция занимает минимум места - от 1м2;
- отсутствует необходимость откачки вод с помощью ассенизатора;
- станция может использоваться как для круглогодичного проживания, так и для сезонного;
- на выходе получается очищенная техническая вода, которую можно использовать для поливания растений, мытья машины. Также допустим ее сброс в канаву или дренаж.
Благодаря высококачественному корпусу из полипропилена, автономная канализация Топас 8 Пр отлично зарекомендовала себя во всех регионах России.
Техническое обслуживание
Раз в неделю – визуальный контроль работы.
Раз в 3 месяца:
- удаление осадка из стабилизатора активного ила с помощью встроенного эрлифт-насоса или фекального насоса;
- очистка насосов эрлифтов и фильтра крупных фракций в приёмной камере;
- очистка и промывка всей внутренней емкости септика Топас 8 Пр;
- прочистка форсунок 1 и 2 цикла;
- удаление неперерабатываемого мусора с помощью нержавеющего сита.
Раз в год – прочистка воздушного фильтра компрессора.
Раз в 2 год – замена мембран компрессора.
Раз в 5 лет – очистка донной части приемного резервуара и аэротенка от минерализованного осадка.
Раз в 10 лет – замена аэрационных элементов на аэраторах.
Покупайте у официального дилера Топол-Эко!
- Гарантия 3 года от официального дилера!
- Оплата любым удобным способом!
- Наличными
- Банковской картой
- Бесплатная доставка до 30 км от МКАД
- Свыше 30 км: от 50 руб. за 1 км
Похожие товары
Топас 6 Пр
на проживание: 6 человек
переработки: 1 м3/сут.
очищенной воды: принудительный
подводящей трубы: 95 м.
Топас 9 Пр
на проживание: 9 человек
переработки: 1.7 м3/сут.
очищенной воды: принудительный
подводящей трубы: 95 м.
Комплектующие
1 400 руб.
600 руб.
25 руб.
Отзывы о компании
Выполненные работы
Доставка и установка очистных станций
д. Кривая Клетка, база отдыха «Селигер-клуб»
Доставка и установка очистных станций
Тверская обл., д. Скулино
Доставка и установка очистных станций
Тверская обл., г. Кувшиново, ул. Северная, д.39А
Получите
индивидуальную
скидку
+
бесплатный
выезд инженера
Topas-septiki.ru

